賃貸物件
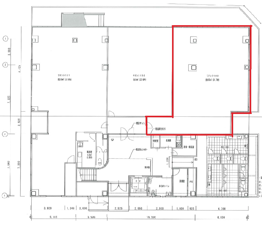
【1階貸事務所103】 改装後の引渡し!県庁近く・国道21号線すぐの好立地! 約31.76坪の落ち着いた環境の貸事務所です。 利便性抜群で、営業所や士業の方の事務所に最適。 駐車場完備・業種相談可能。
- 賃料
- 月額¥247,747(税込)
- 敷金/保証金
- 675,674円
- 礼金
- ¥0
- 管理費/水道光熱費
- 月額¥79,406(事務所使用の光熱費込)
| 使用部分 面積 |
105.0㎡(31.76坪) | 交通 | 東海道本線「西岐阜」駅 徒歩17分 |
所在 | 岐阜市薮田南1丁目7番22号(GoogleMap) |
|---|---|---|---|---|---|
| 物件番号 | コーワビル1F(103) | 物件種目 | 貸事務所 | 都市計画 | 都市計画区域 |
| 接道状況 | 北・西 | 取引形態 | 自社物件 | 以前の業種 | 事務所 |
| 用途地域 | 商業地域 | 建物構造 | 鉄骨造7階 | 火災保険 | 加入要 |
| 土地面積 | - | 償却費 | 3年未満の解約場合有り | 道路幅員 | - |
| 駐車場 | あり(台数相談) 有料対応 | 駐車料 | 6,600円/台 | 引渡し時期 | 2026年6月以降 |
| 築年月 | 1984年1月 | 更新料 | - | 設備 | 専用水道、下水、プロパン |
| 備考 | ・2年未満退去:全償却 2年以上3年未満退去:50% ・保証会社は原則、加入要。初回保証料:賃料総額の1か月分 |
||||
【おすすめポイント】
室内を改装してからのお渡し!
照明・空調・壁・床等の改装後の引渡しになります。
-
県庁近く・幹線道路近くの好立地!
岐阜県庁や国道21号線に近く、岐阜市中心部や西岐阜駅へのアクセスも良好です。
利便性の高いロケーションで、来客型の事務所にも最適です。 -
落ち着きのある環境!
落ち着いた環境の貸事務所です。 -
駐車場完備!
来客用・社員用いずれにも対応できる、車通勤の多い企業にもおすすめです。 - 来客用駐車場も7台分完備。
-
営業所や士業の方の事務所に最適などに最適!
事務所だけでなく、研修や勉強会も貸し会議室がある為、適しています。 -
県庁エリアのオフィス移転に好適!
行政・官公庁・企業が集まる岐阜南部のビジネスエリア。
安定した交通量と周辺環境が魅力です。
貸会議室有り!
3Fに貸会議室あり。(有料)
-1.jpg)

-1.jpg)